REWAA CORPRATE HEADQUARTERS
RIYADH
2026
Credits: clear engineering consultants
SITE PLAN
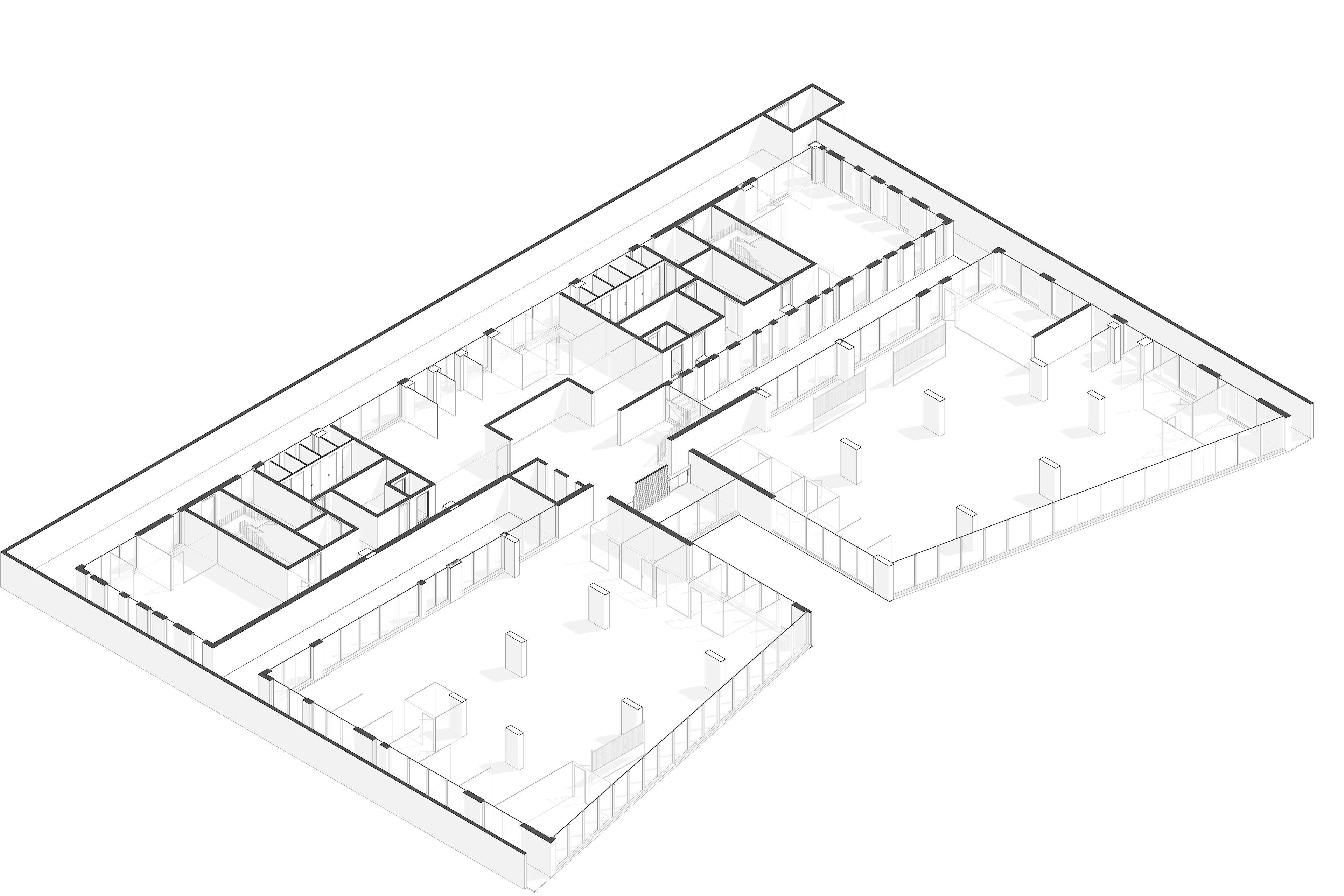
gr floor - 1st floor - 2nd floor
isometric view
entrance
isometric view
CEO office
isometric view
VIP lounge
isometric view
meeting room
isometric view
workspace
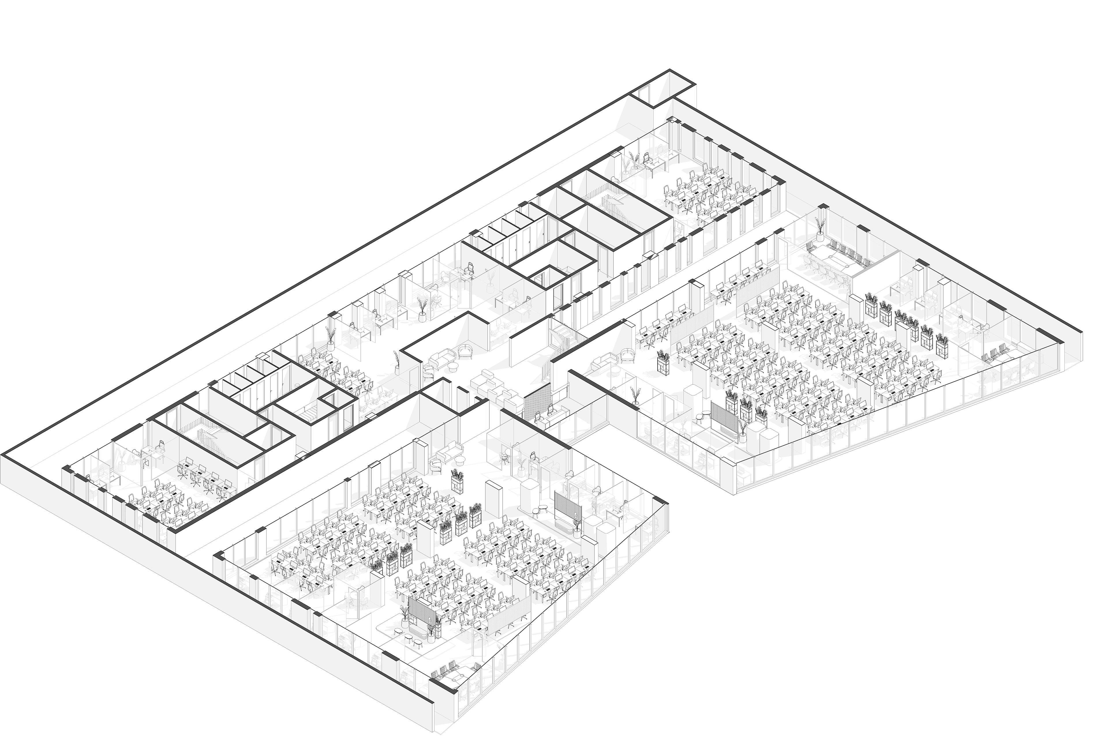
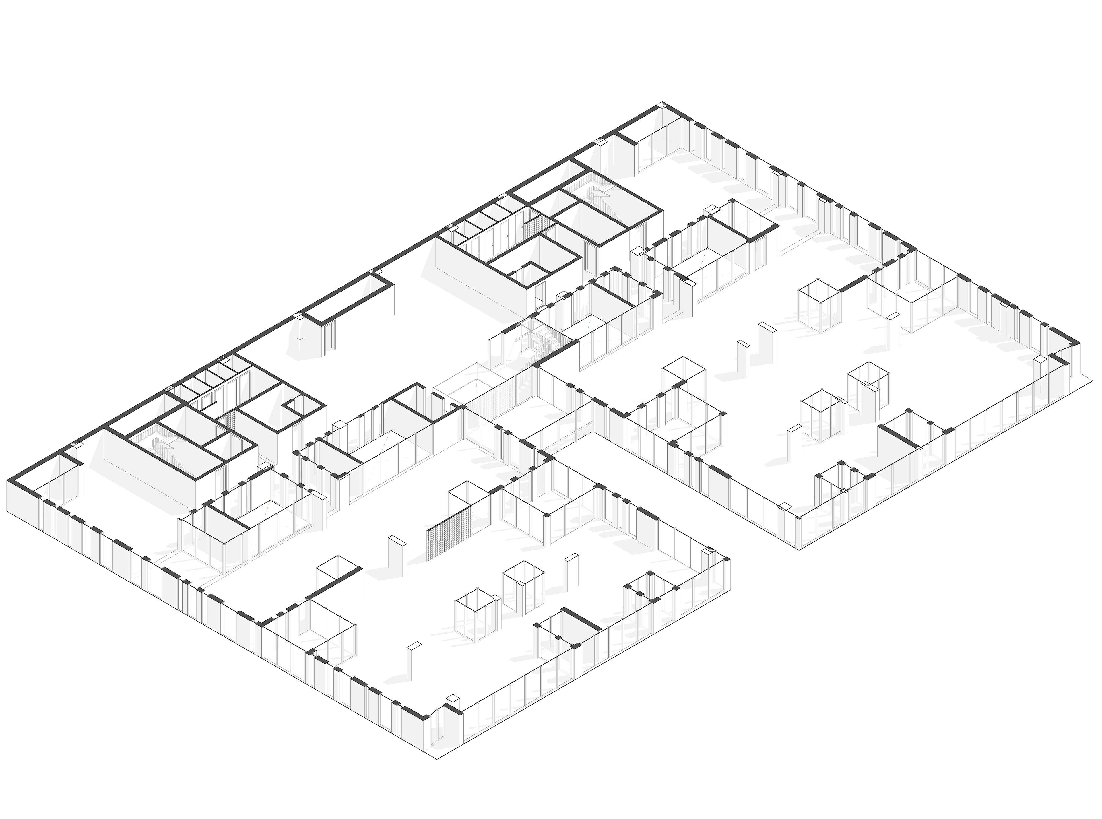
Ground floor
existing - partitions - public zones
meeting rooms - workstations - all
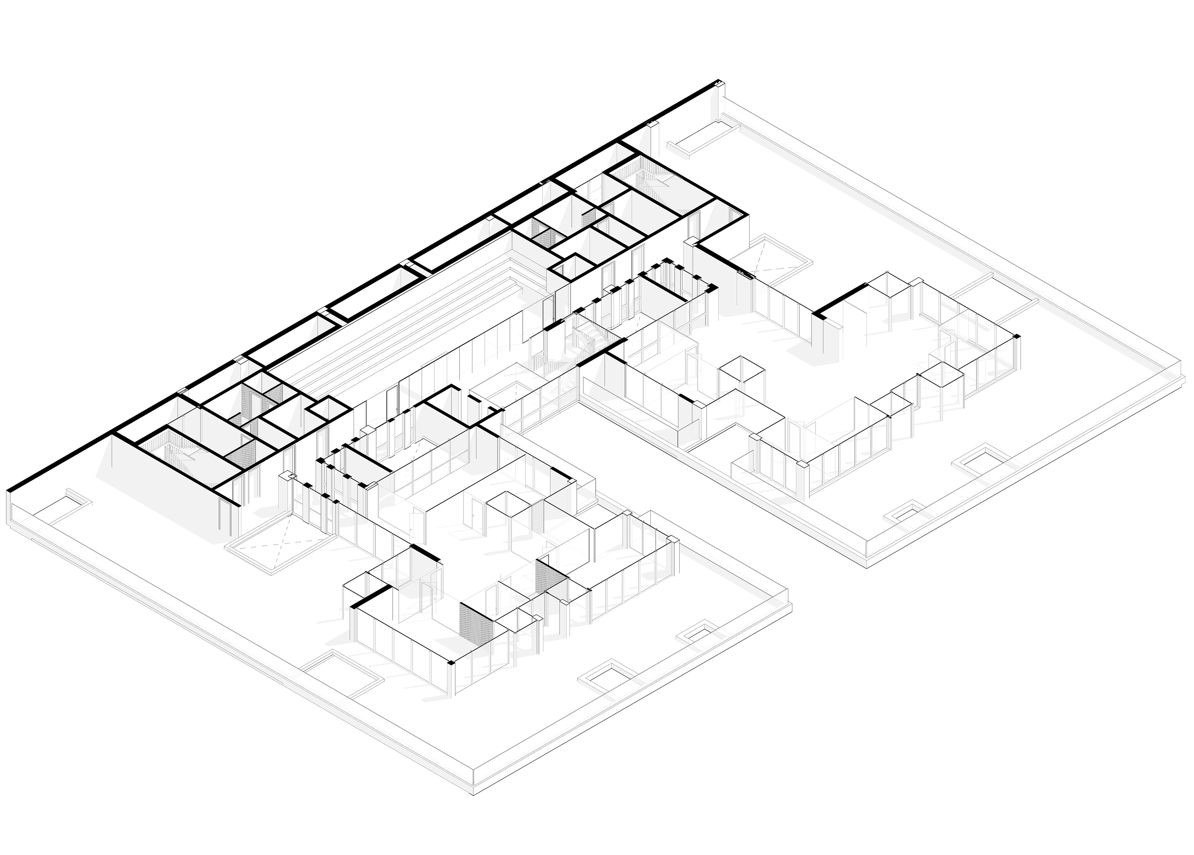
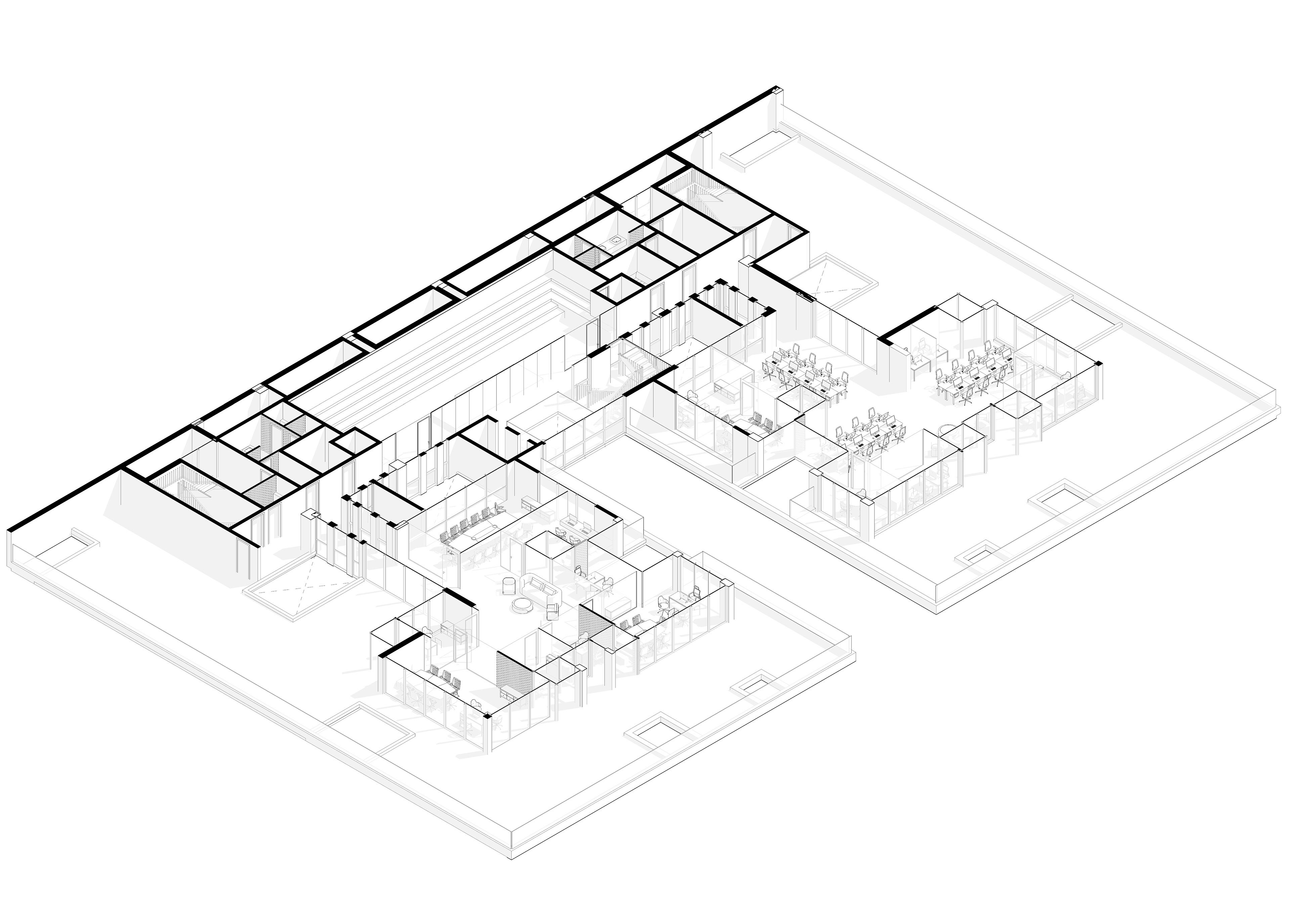
1st floor
existing - partitions - public zones
meeting rooms - workstations - all
2nd floor
existing - partitions - public zones
workstations - all
Building
THANK YOU!